
We hebben het gevoel dat we in de tuin eten, ook al is het hartje winter.
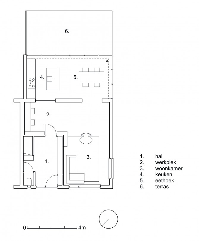
De nieuwe uitbouw en terras hebben exact dezelfde maat als de bestaande plattegrond van de begane grond. Hiermee krijgt het huis uit 1950 veel meer functionele ruimte en blijven de verhoudingen intact. De kamer loopt door in een lichte woonkeuken, vanuit de hal is zicht naar buiten. De constructie van het nieuwe dak is naar binnen geplaatst, hierdoor zijn de kozijnen aan de bovenzijde uit het zicht en lijkt het glas door te lopen. Dit versterkt de ruimtelijke beleving en zorgt voor maximaal contact met de diepe tuin. Binnen en buiten lopen natuurlijk in elkaar over: de ultieme ervaring van vrijheid.
Fotografie: Mike Bink







