
Nieuwe bestemming voor industrieel erfgoed
In de jaren 50 van de vorige eeuw werden in Nederland kelders gebouwd om drinkwater op te slaan. Door de komst van zuiveringsinstallaties werden deze reinwaterkelders overbodig. Ook deze kelder naast een klassieke villa in Colmschate.
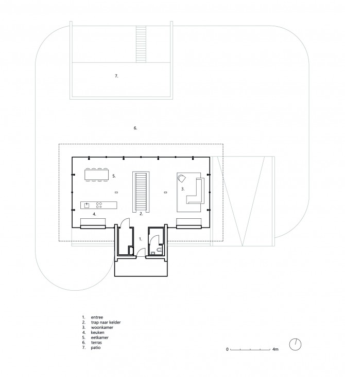
Het plan van architect Ellen Schild overtuigde de gemeente om de kelder te transformeren tot woning. Om voldoende licht te krijgen is een patio aan de achterzijde van de kelder gerealiseerd. De slaapkamers en badkamer krijgen hiermee voldoende daglicht. Op de betonnen kelderbak is een transparant paviljoen geplaatst waar de woonvertrekken zijn. Het glazen paviljoen met een groen dak gaat op in de omgeving: Het dak lijkt te zweven en het ritme van de houten balklaag gaat een mooie verbinding aan met de bomen.
Het paviljoen is zo licht mogelijk geconstrueerd: een mooi contrast met het zware beton van de kelder. Een slanke staalconstructie met een houten balklaag die in het zicht is gehouden en van binnen naar buiten doorloopt. De onderdorpel van de puien is opgenomen in de betonnen vloer. Het glas is de enige scheiding tussen de woonkamer en het terras. Als je in de woonkamer zit, zit je voor je gevoel in het bos.
Fotografie: Mike Bink











