
Wonen aan de gracht
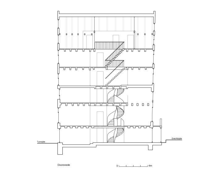
Dit 17de eeuwse grachtenpand in Amsterdam bestond aanvankelijk uit een hoog voorhuis met een onder-en opkamer aan de achterzijde. Op een historische kaart van Jacob Bosch uit 1681 is het pand al te zien. Uit de bouwtijd bleef een deel van de voorgevel, de achtergevel en de hoofddraagconstructie bewaard. Omstreeks 1800 kwam de huidige onderpui tot stand. In de jaren zestig van de vorige eeuw werd het pand onderdeel van een kantorencomplex. Het kreeg een nieuwe betonnen fundering, een betonnen trappenhuis met lift. Hiervoor is toentertijd de kern uit het gebouw gesloopt. Waardoor een groot deel van de monumentale waarde van het interieur van het pand verloren ging.
Met de transformatie van kantoor naar woning was er een kans om de oude ruimtelijke structuur van het pand deels terug te brengen. De betonnen kern en het trappenhuis zijn gesloopt en het dak en de vloeren hersteld. Hiervoor zijn nieuwe houten balken en vloerdelen ingebracht. De nieuwe stalen wenteltrap verbindt het souterrain met de tweede verdieping. De bovenverdiepingen hebben een vide en een daklicht in de bestaande dakkapel.
De materialen zijn kwalitatief hoogwaardig en natuurlijk: houten vloeren, marmer, gepleisterde wanden en onbewerkt staal. Ze zorgen voor de eenheid en de ruimtelijke beleving van het ontwerp. De stoffering, meubels en de kunst geven iedere woonlaag een eigen karakter.
Fotografie: Marjon Hoogervorst
























