
Ongedwongen buitenleven
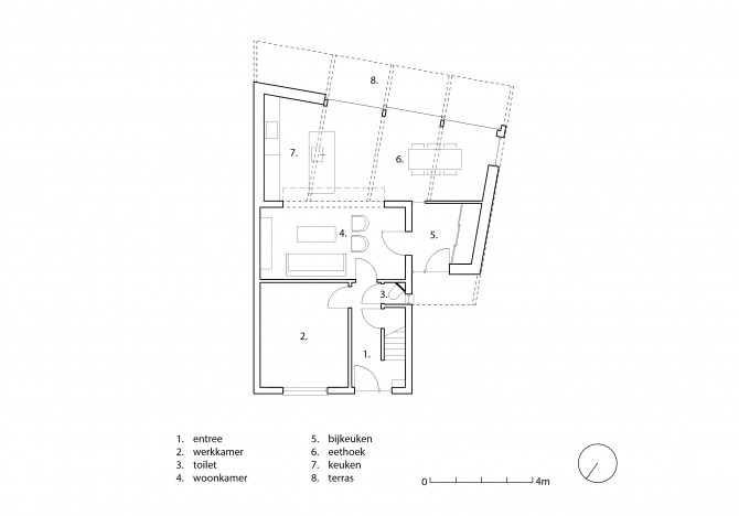
De bewoners waren gevallen voor het knusse huis en wilden met de aanbouw de connectie met de tuin verbeteren. Zonder het karakter van het huis, met het bescheiden uiterlijk, te veranderen. De uitbouw is zodoende aan de voorzijde smal en aan de achterzijde is er ruimte voor een grote woonkeuken. De glazen pui met grote schuifdeuren zorgt voor maximaal contact met buiten, het houten overstek zorgt voor voldoende beschutting en schaduw. De materialen zijn duurzaam en passen bij de natuurlijke omgeving en de manier van leven van het gezin.
Fotografie: Mike Bink









