
Lichte loft
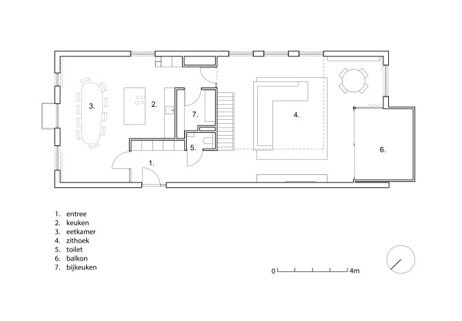
Dit appartement aan de IJssel ligt op de zesde en zevende verdieping en heeft een fantastisch uitzicht op de rivier. De oorspronkelijke ruimte was gedateerd en de indeling van de keuken niet praktisch. Door de nieuwe indeling ontstaat een ruimtelijke woonkeuken aan de voorzijde en is er een handige inpandige bijkeuken.
De trap en doorlopende kastenwand vormen het hart van de ruimte. Strakke eikenhouten fronten met daarachter voldoende opbergruimte. De traptreden van massief hout sluiten aan bij de houtstructuur van de kasten.
De bewoners houden van lichte en natuurlijke materialen. We hebben gekozen voor een aantal materialen, die in het hele appartement terugkomen: een lichte gietvloer, hout, staal en glas vormen de basis voor dit tijdloze interieur. In dit project hebben we nauw samengewerkt met Carlos in Huis. Het maatwerk en het meubilair vormen een mooie eenheid.
Meubels en sfeerverlichting: Carlos in Huis
Maatwerk: Mint
Fotografie: House of I am













