
Binnen en buiten zijn één
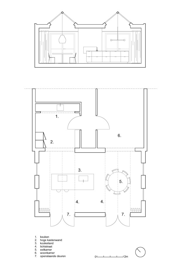
De uitbouw van dit karakteristieke huis in Lochem heeft een kenmerkende dakvorm: Twee zadeldaken met lichtstraten zorgen voor hoogte en licht in de ruimte. Door de openslaande deuren loop je zo de diepe tuin in, binnen en buiten zijn één. De betonnen vloer vormt een mooi contrast met de houten vloeren in het oude huis. De keuken is op maat gemaakt: de natuurlijke materialen hout, messing en natuursteen geven de keuken kwaliteit. In de voormalige bijkeuken is een extra bar gemaakt: via de spiegelwand heb je zicht op de tuin. De meubels, verlichting en aankleding maken het een sfeervolle en persoonlijke woonruimte.
Fotografie: Chiela.












